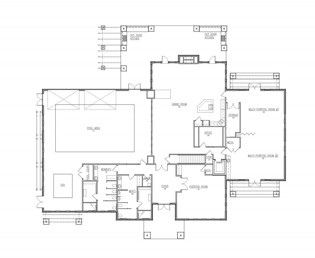
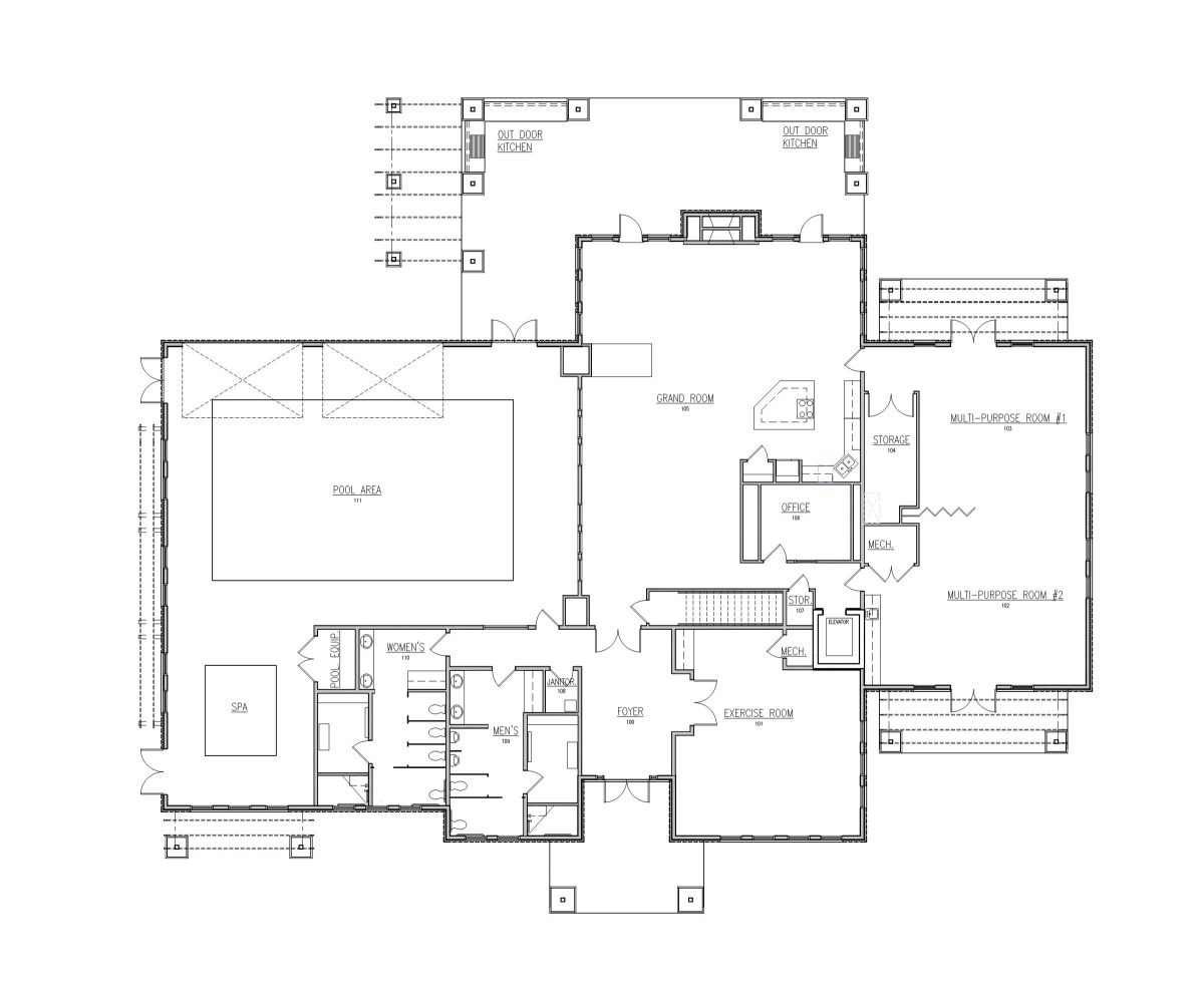
We are in the process of completing plans for a 8,000 sf clubhouse for the Fairway Villas at Green Valley Ranch, a new 55 and up Oakwood Homes community. The active adult exclusive clubhouse will provide indoor/outdoor pool and spa, exercise area, game rooms, outdoor grilling areas with firepit, grand room for organized events and activities, and a nearby fishing lake.
EVstudio was hired to provide full architectural plans and structural engineering for the clubhouse. Construction is expected to begin this summer, 2012.









